Nos biens disponibles

Location de logements BROU

map 28160 BROU

Prix : 417 €

Exclusivement chez HABITAT EURELIEN - Logements individuels neufs - BROU - RUE THIERS

Zéro frais d'agence

Nous vous proposons à la location : 

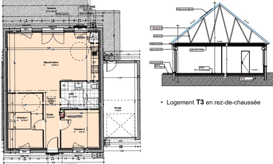
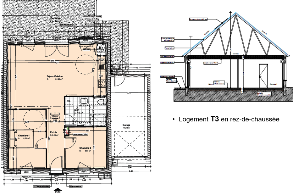
- T3 à partir de 416.74 euros de loyer, pour 69.27 m2 et une provision sur charges de 33.58 euros

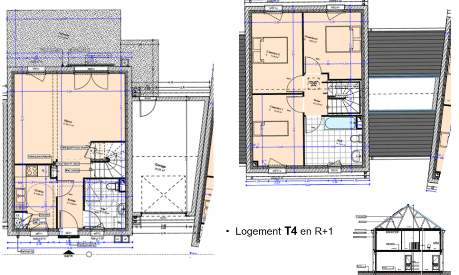
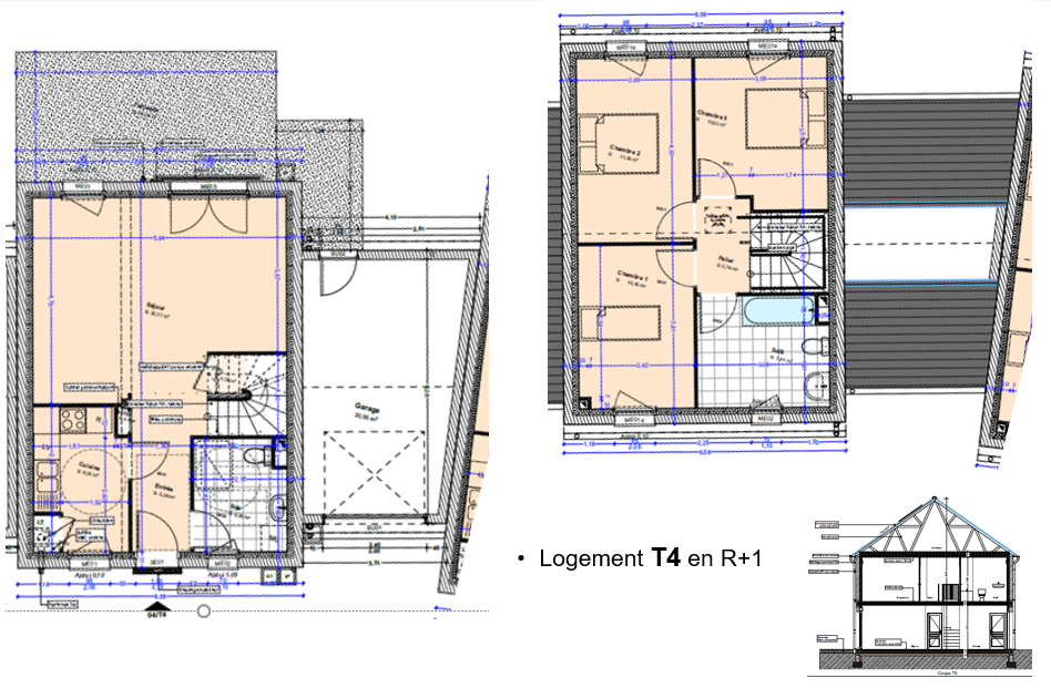
- T4 à partir de 562.46 euros de loyer, pour 86.67 m2 et une provision sur charges de 37.71 euros

Disponibles à partir de fin mai 2026.

 

Situé rue du Thiers, ce quartier se distingue par son calme et sa proximité immédiate avec les écoles et les commerces. Il bénéficie d'une situation géographique privilégiée en étant à seulement 1 heure de Paris par l'A11, sur l'axe Chartres - Le Mans. 

Découvrez un cadre de vie moderne et dynamique, confortable et idéalement situé.

 

Soyez parmi les premiers à en profiter !

 

Des logements pensés pour votre confort : 

- Pièces lumineuses et spacieuses

- Cuisine ouverte

- Salle d'eau et salle de bain (WC compris)

- Jardin + terrasse

- Garage + une place extérieure 

- Chaudière gaz pour chauffage et eau chaude

 

Logements conventionnés donnant droit aux APL (soumis à un plafond de ressources HLM).

Obligation de déposer une demande de logement avec un numéro unique d'attribution.

A effectuer sur le site : www.demande-logement-social.gouv.fr

Ou consulter via l'onglet "Demande de logement" de notre site.

 

Contactez-nous dès maintenant pour l'étude de votre dossier.

Par mail : contact.cc@habitat-eurelien.fr

Par téléphone : 02.37.91.72.49

 

DPE en cours de réalisation.

 

Caractéristiques du logement

Type de logement : Programme neuf
Surface habitable : 0 m²
Année de construction : 2026
Consommation énergétique :
Émission de gaz à effet de serre :



Localisation

Nos biens disponibles

TOUS NOS BIENS